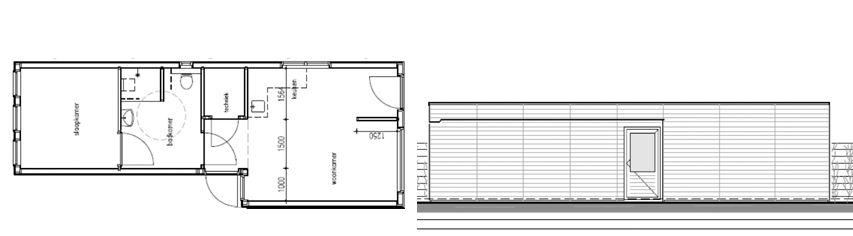
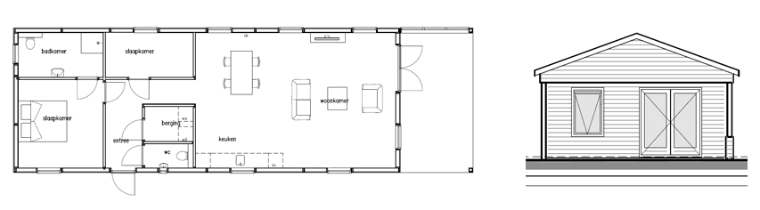
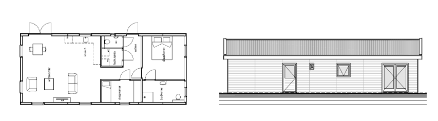
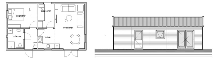
Uitvoeringen Alles weergeven 3,00 m x 9,50 m Tiny house met vide (Klik voor tekening in PDF) 4,00 m x 7,00 m met badkamer zonder keuken (klik voor tekening in PDF) 4,00 m x 7,00 m met mansardedak (Klik voor tekening in PDF) 4,00 m x 8,00 m Tiny house casco (Klik voor tekening in PDF) 4,00 m x 8,00 m Tiny house met grote woonkamer (Klik voor tekening in PDF) 4,00 m x 8,00 m Tiny house met grote woonkamer en eenpersoons slaapkamer (Klik voor tekening in PDF) 4,00 m x 9,00 m met mansardedak en twee slaapkamers op zolder (Klik voor tekening in PDF) 4,50 m x 12,00 m met overkapping/inpandige luifel (Klik voor tekening in PDF) 4,50 m x 13,00 m Tiny house met grote woonkamer, slaapkamer en hobbyruimte (Klik voor tekening in PDF) 4,50 m x 13,00 m met twee slaapkamers (Klik voor tekening in PDF) 4,60 m x 12,40 m met inpandige berging (Klik voor tekening in PDF) 4,70 m x 12,00 m met platdak en open keuken (Klik voor tekening in PDF) 4,70 m x 12,00 m met veranda (Klik voor tekening in PDF) 5,00 m x 10,00 m met badkamer en keuken (Klik voor tekening in PDF) 5,00 m x 11,00 m met open keuken, badkamer en aparte WC (Klik voor tekening in PDF) 5,00 m x 12,00 m met open keuken (Klik voor tekening in PDF) 5,00 m x 5,00 m met platdak en luifel (Klik voor tekening in PDF) 5,60 m x 5,00 m met badkamer en keuken (Klik voor tekening in PDF) 5,70 m x 8,50 m met twee slaapkamers (Klik voor tekening in PDF) 6,00 m x 10,00 m met berging (Klik voor tekening in PDF) 6,00 m x 10,00 m met een veranda van 2,00 m x 10,00 m met twee slaapkamers (Klik voor tekening in PDF) 6,00 m x 10,00 m met een veranda van 2,00 m x 10,00 m met één slaapkamer, grote woonkamer (Klik voor tekening in PDF) 6,00 m x 10,00 m met grote woonkamer (Klik voor tekening in PDF) 6,00 m x 10,00 m met mansardedak (Klik voor tekening in PDF) 6,00 m x 10,00 m met open keuken (Klik voor tekening in PDF) 6,00 m x 10,00 m met open keuken (Klik voor tekening in PDF) 6,00 m x 10,00 m met open keuken en berging (Klik voor tekening in PDF) 6,00 m x 10,00 m met open keuken en twee slaapkamers (Klik voor tekening in PDF) 6,00 m x 10,00 m met seperate w.c. (Klik voor tekening in PDF) 6,00 m x 10,00 m met twee slaapkamers (Klik voor tekening in PDF) 6,00 m x 10,00 m met twee slaapkamers (Klik voor tekening in PDF) 6,00 m x 11,00 m met twee slaapkamers (Klik voor tekening in PDF) 6,00 m x 11,00 m met twee slaapkamers met een suite badkamer (Klik voor tekening in PDF) 6,00 m x 12,00 m met twee slaapkamers (Klik voor tekening in PDF) 6,00 m x 12,00 m met twee slaapkamers (Klik voor tekening in PDF) 6,00 m x 12,00 m met twee slaapkamers en berging (Klik voor tekening in PDF) 6,00 m x 12,00 m met twee slaapkamers en berging (Klik voor tekening in PDF) 6,00 m x 12,00 m met twee slaapkamers en groot raam in woonkamer (Klik voor tekening in PDF) 6,00 m x 12,00 m met twee slaapkamers en zonder en suite badkamer (Klik voor tekening in PDF) 6,00 m x 12,00 m met twee slaapkamers en zonder en suite badkamer (Klik voor tekening in PDF) 6,00 m x 12,00 m met twee slaapkamers, apart toilet en luifel (Klik voor tekening in PDF) 6,00 m x 12,00 m met twee slaapkamers, berging en een en suite badkamer (Klik voor tekening in PDF) 6,00 m x 12,00 m met twee slaapkamers, berging, en suite badkamer en apart toilet (Klik voor tekening in PDF) 6,00 m x 14,00 m met grote woonkamer en open keuken (Klik voor tekening in PDF) 6,00 m x 14,00 m met grote woonkamer en twee slaapkamers (Klik voor tekening in PDF) 6,00 m x 15,00 m met grote woonkamer en schuur (Klik voor tekening in PDF) 6,00 m x 16,00 m met aangebouwde berging/overkapping (Klik voor tekening in PDF) 6,00 m x 16,00 m met grote woonkamer, open keuken en aparte WC (Klik voor tekening in PDF) 6,00 m x 16,00 m met twee slaapkamers, berging en grote woonkamer (Klik voor tekening in PDF) 6,00 m x 16,00 m met twee slaapkamers, berging en grote woonkamer (Klik voor tekening in PDF) 6,00 m x 18,00 m met twee slaapkamers en veranda (Klik voor tekening in PDF) 6,00 m x 19,00 m met aangebouwde overkapping (Klik voor tekening in PDF) 6,00 m x 20,00 m met twee slaapkamers en grote woonkamer (Klik voor tekening in PDF) 6,00 m x 6,00 m met open keuken (Klik voor tekening in PDF) 6,00 m x 8,00 m met open keuken (Klik voor tekening in PDF) 6,00 m x 8,00 m met open keuken en twee slaapkamers (Klik voor tekening in PDF) 6,00 m x 8,50 m met gebroken kap en extra slaap/logeerkamer op zolder (Klik voor tekening in PDF) 6,00 m x 8,50 m met platdak en extra slaap/logeerkamer (Klik voor tekening in PDF) 6,00 m x 9,00 m in L-layout met veranda (Klik voor tekening in PDF) 6,00 m x 9,00 m met veranda (Klik voor tekening in PDF) 7,80 m x 9,80 m met badkamer en suite (Klik voor tekening in PDF) 8,00 m x 12,00 m met twee slaapkamers, badkamer ensuite en veranda (Klik voor tekening in PDF) 8,00 m x 8,00 m met mansardedak (Klik voor tekening in PDF) 9,30 m x 9,30 m in L vorm met hobbyruimte en badkamer en suite (Klik voor tekening in PDF) 12,00 m x 7,50 m in L vorm met hobbyruimte (Klik voor tekening in PDF) 12,00 m x 9,50 m in L vorm met hobbyruimte (Klik voor tekening in PDF) Afwerking Afwerking badkamer Afwerking badkamer Afwerking badkamer Afwerking badkamer Afwerking badkamer Afwerking badkamer Afwerking badkamer Afwerking keuken Afwerking keuken Afwerking keuken Afwerking keuken Afwerking keuken Afwerking keuken Afwerking slaapkamer Afwerking slaapkamer Afwerking slaapkamer Afwerking tiny house Afwerking woonkamer Afwerking woonkamer Afwerking woonkamer Afwerking woonkamer Afwerking woonkamer Afwerking woonkamer Afwerking woonkamer Afwerking woonkamer Afwerking woonkamer Afwerking woonkamer Afwerking woonkamer Afwerking woonkamer Afwerking woonkamer